Selected Works

Architectural projects

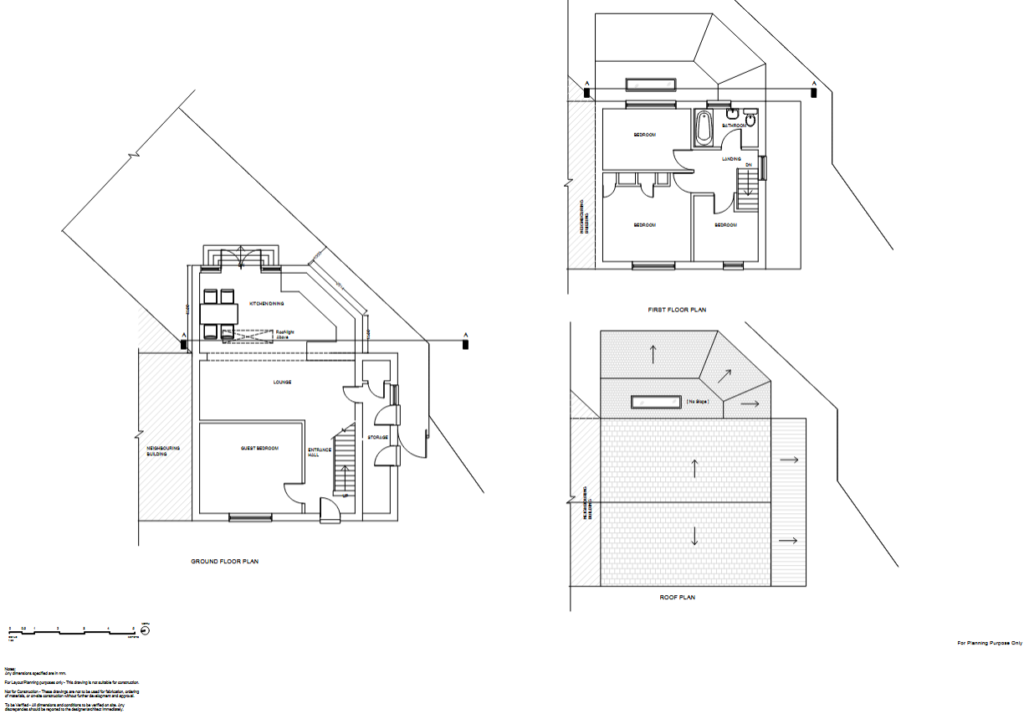
Architectural Drawing Services for Homeowners in the UK

I provide architectural drawing services for homeowners across the UK who are planning a home extension, renovation, or internal alteration and require clear, accurate drawings for a UK planning application. My work supports projects at both planning and construction stages, ensuring proposals are clearly communicated and compliant with relevant regulations.

Well-prepared architectural drawings form the foundation of a successful project, whether the proposal falls under permitted development or requires full planning permission. My role is to translate ideas into precise, easy-to-understand drawings for planning officers, building control, and contractors.

Clear, Accurate Drawings for UK Planning Applications

I prepare a full set of architectural drawings required for UK planning submissions, including existing and proposed plans, elevations, sections, and location drawings. These drawings clearly communicate the scope, scale, and impact of the proposed works while meeting local authority requirements and national planning guidance.
By producing drawings that are accurate, proportionate, and policy-aware, I help streamline the planning process and reduce the likelihood of requests for clarification or revisions.

Home Extension Design Approach

A carefully designed home extension can significantly enhance how a property functions and feels. I work closely with homeowners to explore design options that balance space, natural light, and practicality, while remaining realistic in terms of budget and buildability.

Each design is developed with an understanding of site constraints, planning policy, and the character of the existing building to ensure the extension sits comfortably within its context.

By addressing planning considerations early in the design process, I help minimise the risk of delays, refusals, or costly revisions later on. This proactive approach allows design decisions to be tested against policy requirements before a planning application is submitted.

Permitted Development Advice and Drawings

Where a proposal may qualify under permitted development, I assess the project against the relevant criteria and prepare drawings that comply with permitted development limits. This ensures the design remains within allowable parameters while still achieving the client’s objectives.

I also advise when applying for a Lawful Development Certificate would be beneficial, providing formal confirmation that planning permission is not required. Even when a project falls under permitted development, accurate architectural drawings remain essential for building control approval and construction.

Full Planning Permission Support

For projects that require full planning permission, I guide clients through the UK planning application process by preparing drawings that respond to local planning policies, neighbour considerations, and the surrounding site context. My architectural drawing services are tailored to each project, ensuring submissions are clear, proportionate, and well-reasoned.

Initial Design to Planning Submission

From early design advice through to the submission of a complete planning application, I provide a practical and straightforward architectural service. My aim is to support homeowners at every stage of their home extension journey and help turn ideas into well-designed, well-approved proposals.