PERMITTED DEVELOPMENT, PRIOR APPROVAL
LARGE REAR EXTENSION IN bRAINTREE, ESSEX, uK
A large rear extension of more than 3 meters to be applied via prior approval route of permitted development rights in UK. The client also wanted to do front porch extension and side extension for which we then decided to do another application.
This application got planning approval.
Explore all of my services here.

TL:DR
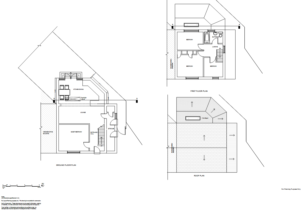
Transformed a semi-detached house with sloping site: Demolished conservatory & side extension, built larger rear extension, new side extension, and front porch under Prior Approval. Overcame sloping ground level challenges for 3m eaves compliance. Drawings secured planning permission from Braintree Council.
Project Overview
The project is a semi-detached house in Braintree, Essex, UK with a conservatory at the rear and a side extension. The client wanted to make a number of changes at the property including demolishing the rear conservatory and building a large rear extension, demolish the side extension and build a new one maximising the size as per the permitted development rights, and also build a new front porch. The client also wanted to do a dropped kerb application initially but later decided to pursue it later on. The initial scope was to do all the proposed works under one Prior Approval route application to gain a Lawful Development Certificate from the local Braintree Council, but later got split into two applications.
Existing Site & Constraints
The site was in a residential neighbourhood in Braintree, Essex, UK and was a semi-detached property with an existing rear conservatory and a singl storey side extension. The site had a substantial decline in ground level starting from the front of the property and going to the rear which required an in-depth study of permitted development rules due to changing ground level.
Incorporating Client Feedback
I continuously coordinated with the client via emails of the issues I was coming across in regards and rectifying it with him. I consistently showed him the progress of how his project was coming across and resolved design issues collaboratively. This was especially important while working out the head height, the eaves height and the the pitched roof with the flat portion at the top.
Client Brief
Initially all proposed works were made as part of one single application but after liaising with local authority, the local authority suggested we make a single application for prior approval large rear extension separate and other works separate. My role here was to build a set of drawings including scaled plans, elevations, sections, location plan and block plan for existing and proposed which would be compliant with local authorities requirements. The client decided to submit the application himself so my role was limited to preparing the drawings and doing any changes the local authority would request after submission.
Design & Planning
I started by reviewing the the local authority planning requirements for a prior approval application and the drawings that would be needed which came out to be standard plans, elevations, site location plan, and block plans. However I also added section drawings in the documentation to design with permissible rear extension height and the changing ground level at the rear which made it crucial to work out the head height else the client would have faced critical issues in using the interior space if the head height wasn’t appropriate enough. This project required a good understanding of where to take reference heights on a sloping height to comply with 3 meter eaves height requirement as per permitted development rights in the large rear extension.
Final Outcome
The project was a challenging one due to the number of changes, the large rear extension, and the sloping site that made going deep into the permitted development rights. However, the project received planning permission and so did the sister application for side extension and front porch proposal which the local case officer suggested that we should split into two.